• Bejelentkezés

    |

Eladó lakás XVI. kerület, Mátyásföldön

Budapest, XVI. kerület, Mátyásföld

Eladó lakás / Csúsztatott zsalus
ELADÓ 85.000.000 FT € 222.466
382.08 Ft-os árfolyamon átszámítva

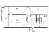
XVI. KERÜLETBEN: MÁTYÁSFÖLDÖN, KÖZEPES ÁLLAPOTÚ, 68 M2, 3 SZOBÁS, I. EMELETI, TÁRSASHÁZI LAKÁS!

AZ ÉPÜLET JELLEMZŐI:
Az 1970-ben épült, 4 emeletes, 10 lakásos, társasház.
A LAKÁS JELLEMZŐI:
Eladásra kínálunk egy kivételes adottságokkal rendelkező, tágas és világos lakást, amely három külön nyíló szobájával, kényelmes közlekedőjével és praktikus elrendezésével garantálja a mindennapi komfortot.
A lakás külön helyiségben található fürdőszobával és WC-vel rendelkezik, a közlekedőben elhelyezett beépített szekrénysor pedig kiváló tárolási lehetőséget biztosít. A 7 m²-es erkély kellemes kültéri pihenőteret teremt, míg a 8 m²-es pincehelyiség további praktikumot ad az ingatlannak.
Az otthon állapota közepes, így új tulajdonosa saját ízlése szerint alakíthatja remek alapot nyújt egy igényes felújításhoz. A nyílászárók eredetiek, redőnnyel felszerelve, a kellemes hőérzetről pedig klímaberendezés gondoskodik. A fűtés házközponti, ami gazdaságos és egyenletes meleget biztosít a hidegebb hónapokban.
A parkolás a ház előtt kényelmesen megoldható.

FINANSZÍROZÁS:
A lakás banki finanszírozással is megvásárolható, melyben irodánk ingyenes tanácsadással áll rendelkezésükre!

A hirdetésben szereplő adatok tájékoztató jellegűek.
Várjuk hívását munkanapokon 09:00-18:00 óra között.
Amennyiben eladná saját ingatlanát, több mint 10 éve működő, kifejezetten a kerületre szakosodott irodánktól, INGYENES ÉRTÉKBECSLÉST kérhet.
VEVŐINK RÉSZÉRE A KÖZVETÍTÉS DÍJTALAN!!
A hirdetésben szereplő adatok tájékoztató jellegűek.

Tulajdonságok
  • Alapterület: 68 m2

  • Erkély: 7 m2

  • Szoba: 3

  • Tároló: Van

  • Állapot: Közepes állapotú

  • Épület állapota: Jó állapotú

  • Épület szintjei: 5

  • Parkoló: Utcán, közterületen

  • Pince: Van

  • Fűtés: Házközponti fűtés

Iroda
Kertvárosi Ingatlan Kft.

Elhelyezkedés
Kapcsolatfelvétel
Érdekel a hirdetés?

Add meg elérhetőségeidet és kollégáink hamarosan felveszik veled a kapcsolatot.

Üzenet küldése

© 2019-2025 Tecnocasa | Minden jog fenntarva!